Stockholm, Tensta

Åvingegränd 13

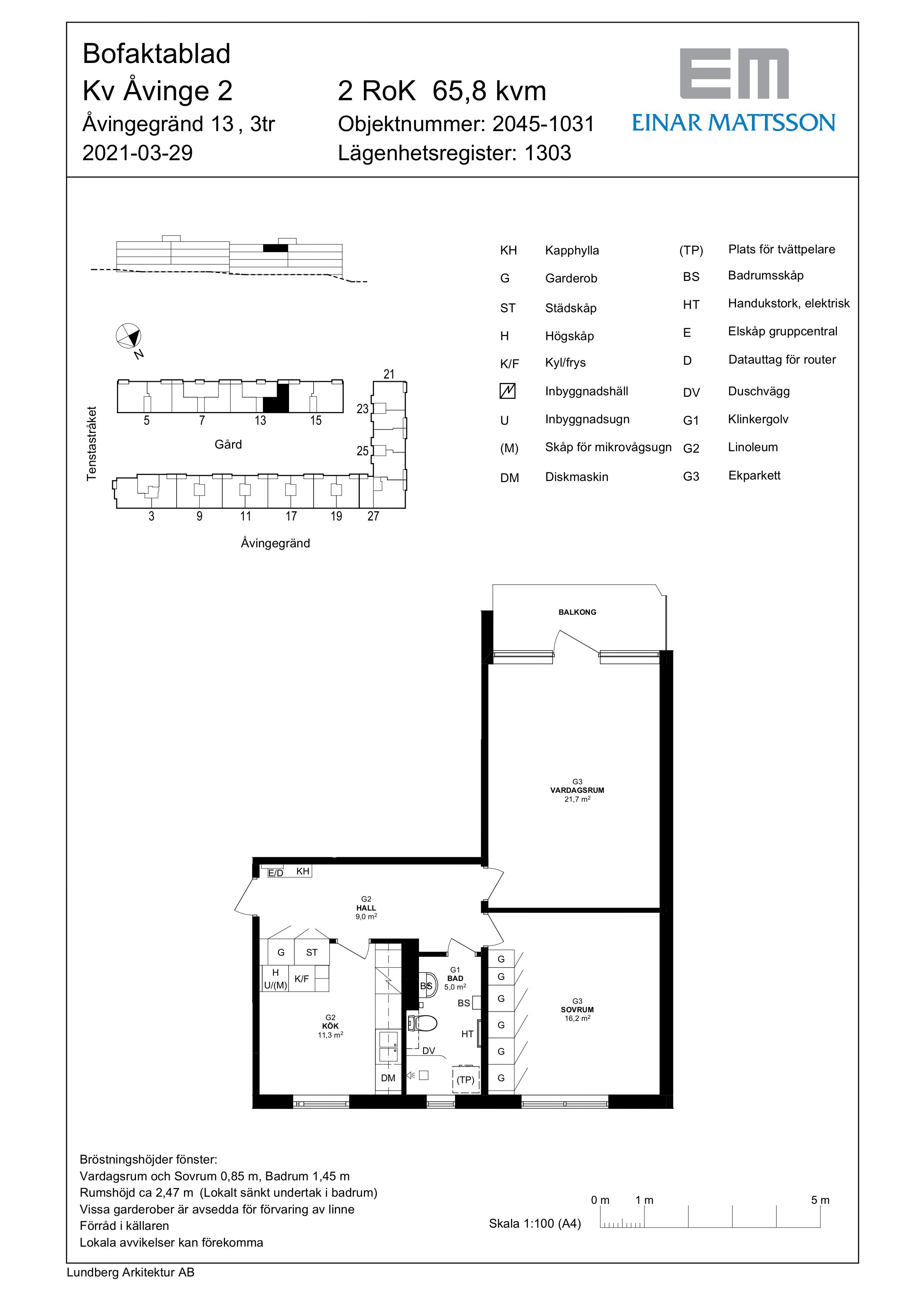
Visa planritning
2045 Åvinge 2 2045 Åvinge 2 2045 Åvinge 2
Hyra 9967 kr/mån
Våning 3 tr
Rum 2
Boyta 66 kvm
Inflytt 2026-05-01
Anmälan senast 2026-04-12
För att anmäla intresse på bostaden behöver du vara registrerad som bostadssökande och vara inloggad.
Planlösning

Egenskaper

  • Kök
  • Badrum
  • Förberett för installation av tvättmaskin
  • Golvvärme - Badrum
  • Handdukstork
  • Hiss saknas, uppgift om framkomlighet saknas
  • Balkong
  • Säkerhetsdörr

Kontrollera att du uppfyller hyresvärdens villkor

Vi jämför hyresvärdens villkor för bostaden med de uppgifter som du har angett hos oss. Logga in för att se om du har möjlighet att göra en intresseanmälan.

Villkor för att anmäla intresse

För att kunna anmäla intresse behöver nedan villkor vara uppfyllda.

  • Max antal hushållsmedlemmar: 3

Villkor för att skriva kontrakt

  • Hyresvärden accepterar inga betalningsanmärkningar, oreglerade skulder eller pågående skuldsanering.
  • Hushållets inkomst ska stå i proportion till den aktuella lägenhetens hyresnivå. När hyran är betald ska hushållet ha ett bestämt belopp kvar. För 2026 är beloppen 10 000 kronor för en ensamstående vuxen, 16 500 kronor för 2 vuxna som behöver sammanräkna, samt 4 400 kronor per barn.
  • Hyresvärdens villkor är att du har regelbunden inkomst från till exempel inkomst av tjänst, egen näringsverksamhet, frilansuppdrag, pension, sjukpenning, sjukersättning, studiemedel eller A-kassa. Försörjningsstöd godkänns inte.
  • Inkomst vid anställning: Du behöver visa ett nyutfärdat, max 2 månader gammalt, anställningsintyg med inkomstuppgifter och de 3 senaste lönespecifikationerna varav minst 1 från aktuell tjänst.
  • Vid annan anställningsform än tillsvidareanställning krävs medlemskap i a-kassa sedan minst 6 månader tillbaka vid prövningstillfället.
  • Du behöver kunna styrka att din inkomst når upp till inkomstvillkoret minst 6 månader från inflyttning.
  • Hyresvärden godkänner att du sammanräknar din inkomst med en annan person om ni har varit sammanboende och folkbokförda på samma adress i minst 12 månader. Minst hälften av inkomstkravet ska huvudsökande uppfylla själv.
  • Om bostad innehas behöver du visa uppsagt hyreskontrakt alternativt försäljningsdokument/mäklaruppdrag för villa eller bostadsrätt. Du kommer att behöva visa ett försäljningsdokument 4 månader efter inflyttningsdatum.
  • Hyresvärden kräver att huvudsökande ska bo stadigvarande i lägenheten och förbehåller sig rätten av att göra en fri prövning av den sökande.
  • Hyresvärden accepterar inte 2 bostäder inom ett äktenskap. Vid äktenskapsskillnad kräver hyresvärden dom på fullbordad skilsmässa.
  • Du behöver ha goda boendereferenser från tidigare boende.