Stockholm, Grimsta

Grimstagatan 82

Hyra 8764 kr/mån
Våning 2 tr
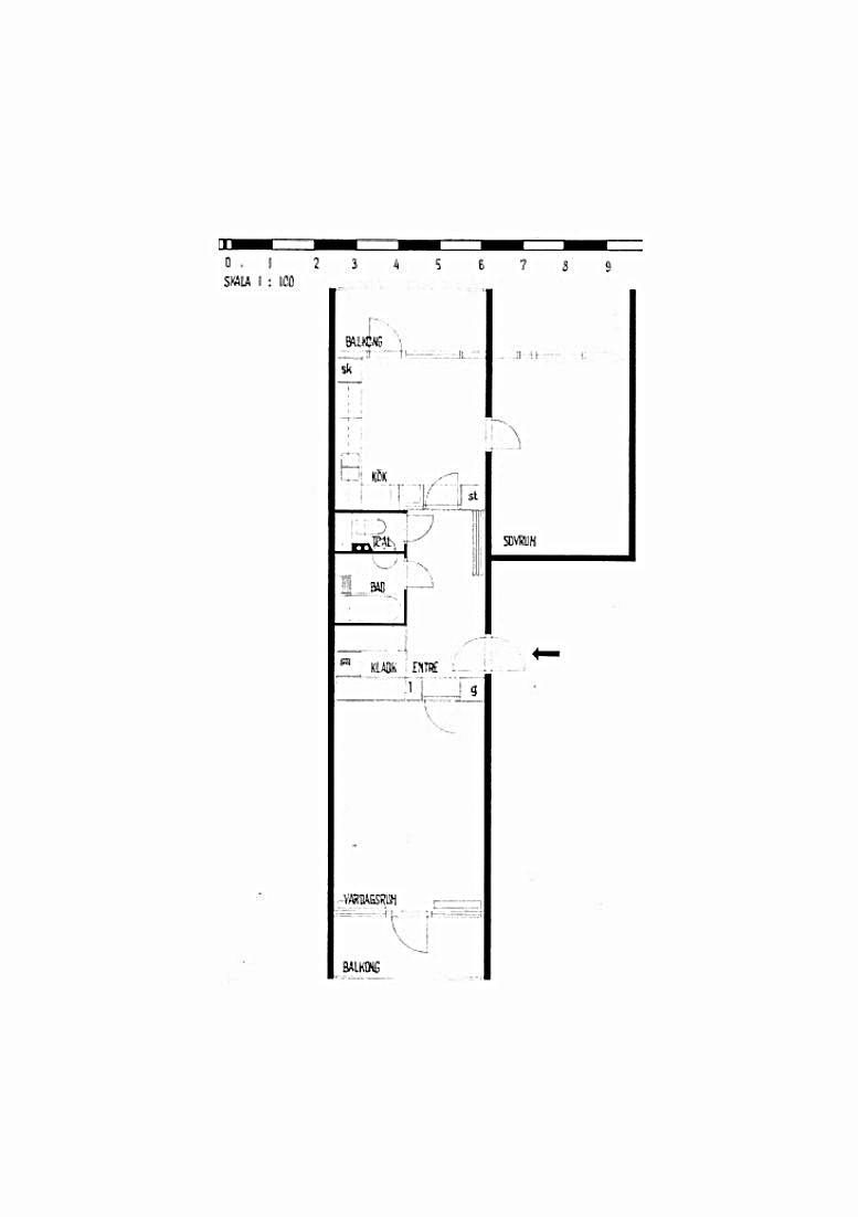
Rum 2
Boyta 64 kvm
Inflytt 2026-06-01
Anmälan senast 2026-03-31
För att anmäla intresse på bostaden behöver du vara registrerad som bostadssökande och vara inloggad.
Planlösning

Egenskaper

  • Kök
  • Badrum
  • Uppgift om hiss saknas
  • Dubbla balkonger

Kontrollera att du uppfyller hyresvärdens villkor

Vi jämför hyresvärdens villkor för bostaden med de uppgifter som du har angett hos oss. Logga in för att se om du har möjlighet att göra en intresseanmälan.

Villkor för att skriva kontrakt

  • Den sökandes inkomst ska stå i proportion till den aktuella lägenhetens hyresnivå. När hyran är betald ska den sökande ha ett bestämt belopp kvar. För år 2026 är beloppet 6 243 kronor för en ensamstående vuxen. Vid ekonomiskt bistånd (försörjningsstöd) behövs det finnas beslut från Stockholms kommun. Om den sökande har betalningsanmärkningar sker en individuell prövning inom ramen för godkännandevillkoren. Läs mer under länken, regler för godkännande av hyresgäst.
  • Det är ditt ansvar att undersöka bostadens standard och utformning. Om du är erbjuden möjligheten att titta på bostaden är det en rekommendation att du varit på visning. Tänk på att du accepterar bostaden i befintligt skick.
  • Regler för godkännande av hyresgäst https://bostad.stockholm.se/gemensammaregler