Huddinge, Skogås

Härbrevägen 9

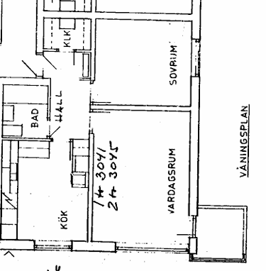
Visa planritning
Beskrivning saknas
Hyra 7337 kr/mån
Våning 2 tr
Rum 2
Boyta 55 kvm
Inflytt 2026-05-01
Anmälan senast 2026-03-31
För att anmäla intresse på bostaden behöver du vara registrerad som bostadssökande och vara inloggad.
Planlösning

Egenskaper

  • Kök
  • Badrum
  • Hiss saknas, uppgift om framkomlighet saknas
  • Balkong

Kontrollera att du uppfyller hyresvärdens villkor

Vi jämför hyresvärdens villkor för bostaden med de uppgifter som du har angett hos oss. Logga in för att se om du har möjlighet att göra en intresseanmälan.

Villkor för att anmäla intresse

För att kunna anmäla intresse behöver nedan villkor vara uppfyllda.

  • Max antal hushållsmedlemmar: 4

Villkor för att skriva kontrakt

  • Hyresvärden accepterar inga betalningsanmärkningar, historiskt skuldsaldo eller oreglerade skulder.
  • När hyran är betald ska den sökande ha ett bestämt belopp kvar. För 2026 är beloppet 6 243 kronor för en ensamstående vuxen. Vid två sammanboende vuxna (make/maka/sambo) är beloppet 10 314 kronor.
  • Vid sammanräkning behöver ni ha varit folkbokförda på samma adress eller registrerade som medboende i minst 12 månader och huvudsökande behöver styrka minst 6 243 kronor.
  • Inkomster som godkänns är inkomst av tjänst, egen näringsverksamhet, frilansuppdrag, pension, sjukersättning, studiemedel eller A-kassa. Försörjningsstöd eller borgensman godkänns inte.
  • Vid annan anställningsform än tillsvidare behöver du ha varit medlem i a-kassan minst 12 månader. Vid behovsanställning krävs 6 lönebesked från aktuellt arbete prövningen baseras på.
  • Vid inkomst från egen näringsverksamhet behöver företaget varit verksamt i minst 2 år.
  • Du behöver kunna styrka att din inkomst når upp till inkomstkravet minst 6 månader från inflyttning.
  • Om bostad innehas kräver hyresvärden att uppsagt hyreskontrakt alternativt mäklaruppdrag för villa eller bostadsrätt kan uppvisas före nytt kontrakt tecknas. Senast 6 månader efter inflyttningsdatum ska du kunna visa ett avtal på såld bostad.
  • Vid skilsmässa krävs kvitto från tingsrätten på ansökan om skilsmässa.
  • Du behöver ha goda boendereferenser från tidigare boende.
  • Du måste gå på visningen. Om du inte själv kan närvara så kan medboende eller ombud närvara i ditt ställe. Ta med legitimation och fullmakt.