Nacka, Orminge

Kanholmsvägen 46

Interiörbild Interiörbild Interiörbild Interiörbild Exteriörbild Exteriörbild
Hyra 8412 kr/mån
Våning 3 tr
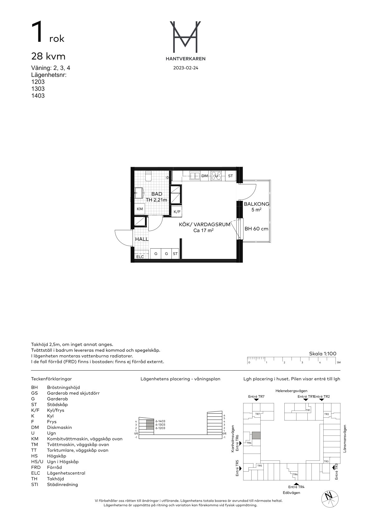
Rum 1
Boyta 28 kvm
Inflytt 2026-06-01
Anmälan senast 2026-03-25
För att anmäla intresse på bostaden behöver du vara registrerad som bostadssökande och vara inloggad.
Planlösning

Egenskaper

  • Kök
  • Diskmaskin
  • Badrum
  • Tvättmaskin
  • Hiss finns, rymmer rullstol
  • Balkong
  • Säkerhetsdörr
  • Rökfritt

Förvaring/gemensamma utrymmen

  • Cykelrum
  • Barnvagnsrum
  • Källar/vindsförråd
  • Tillgång till kallgarage
  • Miljörum/Källsortering

Förbrukning

  • Värme ingår i hyran
  • Bredband - Hyrestillägg

Kontrollera att du uppfyller hyresvärdens villkor

Vi jämför hyresvärdens villkor för bostaden med de uppgifter som du har angett hos oss. Logga in för att se om du har möjlighet att göra en intresseanmälan.

Villkor för att anmäla intresse

För att kunna anmäla intresse behöver nedan villkor vara uppfyllda.

  • Lägsta årsinkomst: 255000 kronor
  • Max antal hushållsmedlemmar: 2

Villkor för att skriva kontrakt

  • Hyresvärden accepterar inga betalningsanmärkningar eller oreglerade skulder. Boenderelaterade skulder accepteras inte.
  • Din totala årsinkomst brutto behöver vara lägst 2,5 gånger årshyran.
  • Hyresvärden tillämpar en särskild inkomstregel för ålderspensionärer som innebär att din totala inkomst brutto ska uppgå till lägst 2 gånger årshyran.
  • Inkomster som godkänns är inkomst av tjänst, egen näringsverksamhet, pension, sjukersättning, A-kassa, studiemedel och bostadsbidrag. Vid provanställning, visstidsanställning eller studiebidrag krävs medlemskap i a-kassa sedan minst 6 månader tillbaka vid prövningstillfället alternativt en borgensman. Försörjningsstöd godkänns inte.
  • Du behöver uppvisa nyutfärdat anställningsintyg och lönebesked från de senaste 3 månaderna.
  • Sammanräkning av inkomst kan godtas för sammanboende par som varit skrivna på samma adress eller registrerade som medboende i minst 6 månader.
  • Huvudsökande behöver själv uppnå minst hälften av inkomstvillkoret. Du behöver kunna styrka att din inkomst når upp till inkomstkravet minst 3 månader från inflyttning.
  • Om bostad innehas behöver du visa uppsagt hyreskontrakt alternativt försäljningsdokument/mäklaruppdrag för villa eller bostadsrätt. Du kommer att behöva visa ett försäljningsdokument 6 månader efter inflyttningsdatum.
  • Vid skilsmässa krävs kvitto från tingsrätten på ansökan om skilsmässa.
  • Du behöver ha goda boendereferenser från tidigare boende.