Södertälje, Södertälje Centrum

Astrabacken 8A

1 2 3 4
Hyra 6133 - 6316 kr/mån
Våning BV - 7 tr
Rum 1
Boyta 25 - 27 kvm
Inflytt 2026-06-01
Anmälan senast 2026-03-16
För att anmäla intresse på bostaden behöver du vara registrerad som bostadssökande och vara inloggad.

Bostadstyp

10 bostäder

Egenskaper

  • Kök
  • Diskmaskin
  • Badrum
  • Gemensam tvättstuga
  • Tvättmaskin
  • Handdukstork
  • Hiss finns, uppgift om framkomlighet saknas
  • Balkong
  • Säkerhetsdörr
  • Rökfritt

Förvaring/gemensamma utrymmen

  • Cykelrum
  • Barnvagnsrum
  • Förråd i bostaden
  • Tillgång till varmgarage
  • Miljörum/Källsortering

Förbrukning

  • El - individuell mätning
  • Värme ingår i hyran
  • Varmvatten - ingår i hyran

Kontrollera att du uppfyller hyresvärdens villkor

Vi jämför hyresvärdens villkor för bostaden med de uppgifter som du har angett hos oss. Logga in för att se om du har möjlighet att göra en intresseanmälan.

Villkor för att anmäla intresse

För att kunna anmäla intresse behöver nedan villkor vara uppfyllda.

  • Lägsta årsinkomst: 150000 kronor
  • Max antal hushållsmedlemmar: 2

Villkor för att skriva kontrakt

  • Hyresvärden accepterar max 3 betalningsanmärkningar, det totala beloppet får vara max 5000 kronor.
  • Hyresvärden tillämpar en inkomstregel som innebär att din totala årsinkomst brutto skall uppgå till lägst 2 gånger årshyran.
  • Hyresvärdens villkor är att du har en regelbunden inkomst som varar minst 6 månader framåt från inflyttningsdatum. Som inkomst räknas till exempel tillsvidareanställning, egen rörelse, frilansuppdrag, visstidsanställnings, behovsanställning, pension, A-kassa eller långtidsvikariat. Inkomsten kan kompletteras med barnbidrag, föräldrapenning, studiebidrag eller bostadstillägg.
  • Vid annan anställningsform än tillsvidareanställningar krävs 6 månaders medlemskap i a-kassan. Försörjningsstöd godkänns inte. Hyresvärden kommer att kräva intyg som styrker dina inkomstuppgifter.
  • Hyresvärden har som villkor att du ska styrka inkomst med minst 1 lönebesked från aktuell anställning.
  • Ha intygen i beredskap om du accepterar lägenheten.
  • Hyresvärdens godkänner att du sammanräknar din inkomst om ni varit medboende i 6 månader alternativt varit sammanboende och folkbokförda på samma adress i minst 6 månader. Minst 50% av inkomstkravet ska huvudsökande uppfylla själv. Sammanräkning av inkomst godkänns inte tillsammans med barn, syskon, förälder eller vänner.
  • Om bostad innehas kräver hyresvärden att uppsagt hyreskontrakt alternativt mäklaruppdrag för villa eller bostadsrätt kan uppvisas före nytt kontrakt tecknas.
  • Hyresvärden har regler mot trångboddhet för att förhindra osunda boendeförhållanden i fastigheten. Antalet personer som skall bo i lägenheten skall vara rimligt i förhållande till lägenhetens storlek.
  • Hyresvärden kommer att ta referenser från nuvarande eller tidigare boende.

Denna annons innehåller 10 st bostäder

Astrabacken 10A, lgh nr: C96220-21304
6133 kr/mån 5tr 1 rum 25 kvm
Inflytt: 2026-06-01
Storgatan 41B, lgh nr: C96220-80803
6307 kr/mån BV 1 rum 27 kvm
Inflytt: 2026-06-01
Astrabacken 8A, lgh nr: C96220-11004
6307 kr/mån 2tr 1 rum 27 kvm
Inflytt: 2026-06-01
Astrabacken 10B, lgh nr: C96220-31003
6316 kr/mån 2tr 1 rum 27 kvm
Inflytt: 2026-06-01
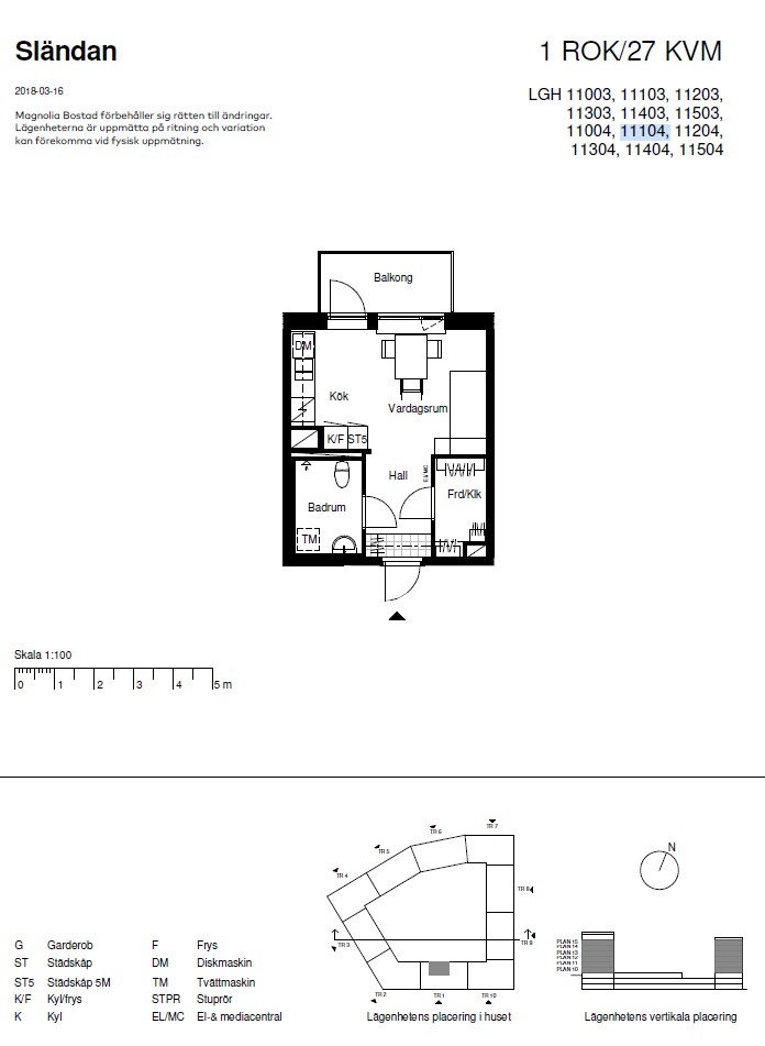
Astrabacken 8A, lgh nr: C96220-11104
6307 kr/mån 3tr 1 rum 27 kvm
Inflytt: 2026-06-01
Astrabacken 10B, lgh nr: C96220-31104
6307 kr/mån 3tr 1 rum 27 kvm
Inflytt: 2026-06-01
Kvarnbergagatan 5B, lgh nr: C96220-61304
6316 kr/mån 5tr 1 rum 27 kvm
Inflytt: 2026-06-01
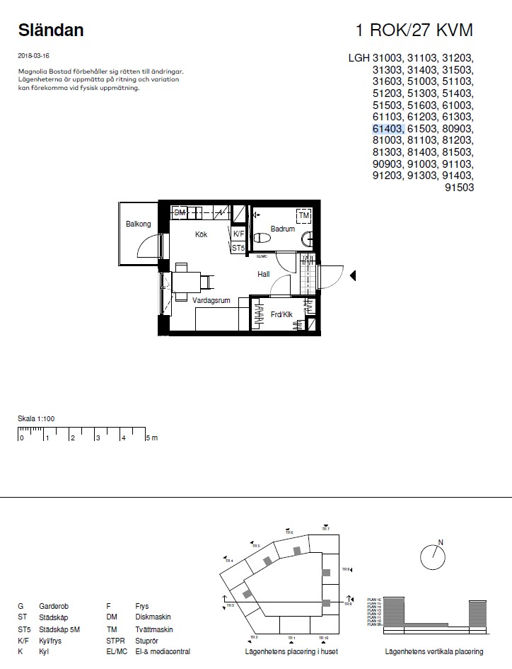
Kvarnbergagatan 5B, lgh nr: C96220-61403
6307 kr/mån 6tr 1 rum 27 kvm
Inflytt: 2026-05-01
Kvarnbergagatan 7A, lgh nr: C96220-51403
6307 kr/mån 6tr 1 rum 27 kvm
Inflytt: 2026-06-01
Kvarnbergagatan 7A, lgh nr: C96220-51503
6307 kr/mån 7tr 1 rum 27 kvm
Inflytt: 2026-06-01