Stockholm, Vårberg

Viggholmsvägen 4

Exempelbild badrum 1-2rok Kasvakten Exempelbild vrum Kasvakten Exempelbild Badrum Kasvakten 4 rok Kasvakten exempelbild kök 1rok Fasadbild 1 Kasvakten Exempelbild kök 2 Kasvakten Kasvakten exempelbild kök 4rok Fasadbild 2 Kasvakten Kasvakten fasad Exempelbild hall 4 rok Kasvakten Kasvakten utsikt Kasvakten exempelbild kök 2rok
Hyra 9184 kr/mån
Våning 5 tr
Rum 1
Boyta 35 kvm
Inflytt 2026-04-01
Anmälan senast 2025-12-29
För att anmäla intresse på bostaden behöver du vara registrerad som bostadssökande och vara inloggad.
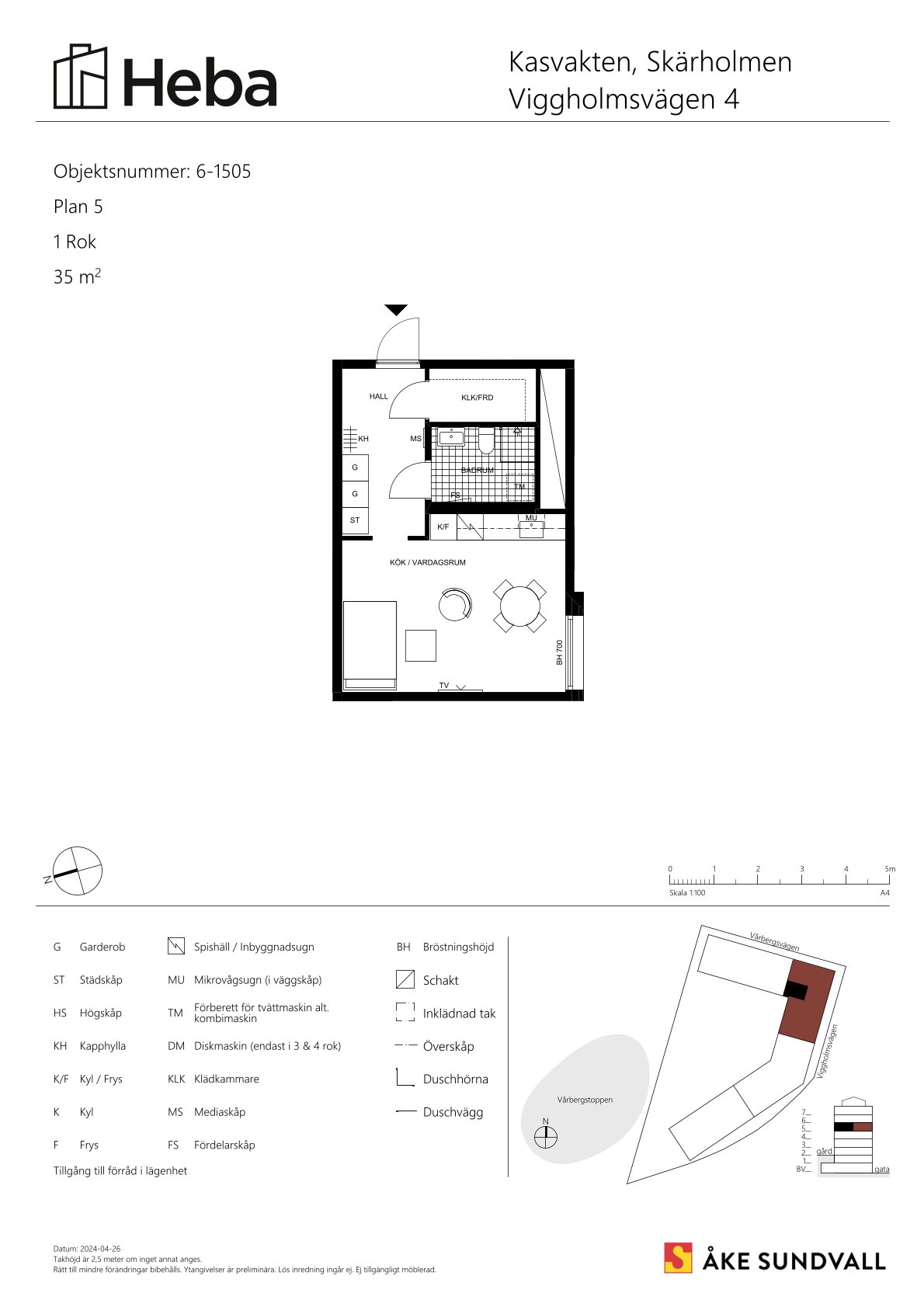
Planlösning

Egenskaper

  • Kök
  • Badrum
  • Uppgift om hiss saknas
  • Ej balkong
  • Säkerhetsdörr

Kontrollera att du uppfyller hyresvärdens villkor

Vi jämför hyresvärdens villkor för bostaden med de uppgifter som du har angett hos oss. Logga in för att se om du har möjlighet att göra en intresseanmälan.

Villkor för att anmäla intresse

För att kunna anmäla intresse behöver nedan villkor vara uppfyllda.

  • Max antal hushållsmedlemmar: 2

Villkor för att skriva kontrakt

  • Hyresvärden accepterar inga betalningsanmärkningar eller oreglerade skulder.
  • När hyran är betald ska den sökande ha ett bestämt belopp kvar (nettolön). För 2026 är beloppet 6 243 kronor för en ensamstående vuxen. Vid två sammanboende vuxna (make/maka/sambo) är beloppet 10 314 kronor. Vid barn i hushållet ökar det bestämda beloppet med 3 336 kronor för barn till och med 6 år och 4 004 kronor för barn 7 år eller äldre, 4 672 för barn 11 år eller äldre, 5 339 för barn 15 år eller äldre. Vid delad vårdnad av barn gäller halva beloppet.
  • Din eller er gemensamma årsinkomst behöver inte överstiga 2,5 gångers årshyran.
  • Sökanden och medsökanden som skall flytta ihop kan sammanräkna sina inkomster men huvudsökande behöver styrka minst 51 % av inkomstvillkoret.
  • Inkomster som godkänns är inkomst av tjänst, eget företag, ålderspension, CSN, sjukersättning, a-kassa, aktivitetsersättning, underhållsbidrag/stöd och omvårdnadsbidrag.
  • Vid annan anställningsform än tillsvidare behöver du ha varit medlem i a-kassan minst 12 månader vid prövningstillfället. Nyanställd minst 1 lönebesked + a-kassa 1 år.
  • Borgensman, övriga bidrag och ersättningar godkänns ej.
  • Du behöver kunna styrka att din inkomst når upp till inkomstvillkoret minst 3 månader från inflyttning.
  • Om bostad innehas kräver hyresvärden att uppsagt hyreskontrakt alternativt uppdragsavtal för villa eller bostadsrätt kan uppvisas före nytt kontrakt tecknas. Senast 6 månader efter inflyttningsdatum ska du kunna visa ett avtal på såld bostad.
  • Ansökan om skilsmässa ska vara inskickad innan lägenheten publicerats för annons.
  • Hyresvärden har regler mot trångboddhet. Antalet boende i bostaden ska vara rimligt i förhållande till storleken.
  • Hyresvärden kräver goda boendereferenser.
  • Det är ditt ansvar att undersöka bostadens standard och utformning. Om du är erbjuden möjligheten att titta på bostaden är det en rekommendation att du varit på visning.