Värmdö, Munkmora

Skyttevägen 22

Hyra 9407 kr/mån
Våning 2 tr
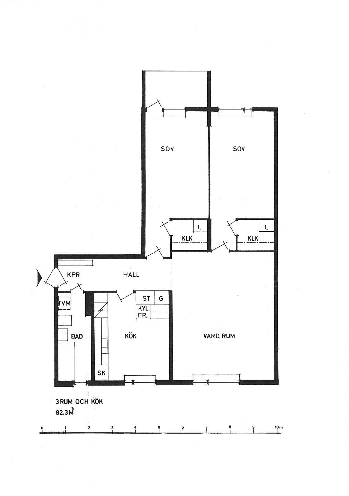
Rum 3
Boyta 82 kvm
Inflytt 2026-06-01
Anmälan senast 2026-04-01
För att anmäla intresse på bostaden behöver du vara registrerad som bostadssökande och vara inloggad.
Planlösning

Egenskaper

  • Kök
  • Badrum
  • Gemensam tvättstuga
  • Hiss saknas, uppgift om framkomlighet saknas
  • Balkong

Förvaring/gemensamma utrymmen

  • Miljörum/Källsortering

Kontrollera att du uppfyller hyresvärdens villkor

Vi jämför hyresvärdens villkor för bostaden med de uppgifter som du har angett hos oss. Logga in för att se om du har möjlighet att göra en intresseanmälan.

Villkor för att anmäla intresse

För att kunna anmäla intresse behöver nedan villkor vara uppfyllda.

  • Max antal hushållsmedlemmar: 5

Villkor för att skriva kontrakt

  • Hyresvärden accepterar inga oreglerade skulder. Eventuella betalningsanmärkningar får maximalt uppgå till 1000 kronor totalt och får inte vara hyresrelaterade.
  • Den sökandes inkomst ska stå i proportion till den aktuella lägenhetens hyresnivå. När hyran är betald ska den sökande ha ett bestämt belopp kvar. För år 2026 är beloppet 6 243 kronor för en ensamstående vuxen, vid 2 sammanboende vuxna (make/maka/sambo) är beloppet 10 314 kronor. Hyresvärdens godkänner att du sammanräknar din inkomst om ni varit medboende i 6 månader alternativt varit sammanboende och folkbokförda på samma adress i minst 6 månader. 50 % av inkomstkravet ska huvudsökande uppfylla själv. Sammanräkning av inkomst godkänns inte tillsammans med barn, syskon, förälder eller vänner.
  • Hyresvärden kommer att kräva nyutfärdat anställningsintyg eller motsvarande med inkomstuppgifter. Ha intyget i beredskap om du accepterar lägenheten.
  • Du behöver kunna styrka att din inkomst når upp till inkomstvillkoret minst 6 månader från inflyttning, om du endast kan styrka inkomst 3 månader krävs medlemskap i a-kassa som varat i minst 6 månader.
  • Hyresvärdens villkor är att du har en regelbunden inkomst från till exempel en anställning, pension, eget företag, A-kassa, sjukpenning, sjukbidrag eller studiemedel. Vid ekonomiskt bistånd (försörjningsstöd) behövs det finnas beslut från Värmdö kommun.
  • Om bostad innehas kräver hyresvärden uppsagt hyreskontrakt. Försäljning av villa eller bostadsrätt skall vara påbörjad vid kontraktsteckning.
  • Max antal boende i bostaden är 2 vuxna och 3 barn.