Huddinge, Visättra

Småbrukets backe 60

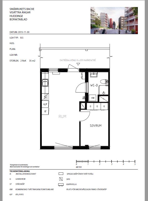
Visa planritning
1168 Brygghuset Ungdomslgh 35 kvm 2 rum och kök vardagsrum.png 1168 Brygghuset Ungdomslgh 35 kvm 2 rum och kök sovrum.png 1168 Brygghuset Ungdomslgh 35 kvm 2 rum och kök - Hall .png Ungdomslägenhet 35 kvm Köket.png 1168 Brygghuset Ungdomslgh 35 kvm 2 rum och kök - badrum.jpg
Hyra 8104 kr/mån
Våning 4 tr
Rum 2
Boyta 35 kvm
Inflytt 2026-06-01
Anmälan senast 2026-03-11
För att anmäla intresse på bostaden behöver du vara registrerad som bostadssökande och vara inloggad.
Planlösning

Bostadstyp

Ungdom korttid

Egenskaper

  • Kök
  • Badrum
  • Tvättmaskin
  • Hiss finns, rymmer rullstol
  • Ej balkong
  • Loftgång
  • Säkerhetsdörr

Förvaring/gemensamma utrymmen

  • Cykelrum

Förbrukning

  • Värme ingår i hyran
  • Varmvatten - ingår i hyran
  • Bredband - ingår i hyran

Kontrollera att du uppfyller hyresvärdens villkor

Vi jämför hyresvärdens villkor för bostaden med de uppgifter som du har angett hos oss. Logga in för att se om du har möjlighet att göra en intresseanmälan.

Villkor för att anmäla intresse

För att kunna anmäla intresse behöver nedan villkor vara uppfyllda.

  • Lägsta tillåtna ålder: 18 år
  • Högsta tillåtna ålder: 24 år
  • Lägsta årsinkomst: 195000 kronor
  • Max antal hushållsmedlemmar: 2

Villkor för att skriva kontrakt

  • Hyresvärden accepterar inga betalningsanmärkningar eller oreglerade skulder.
  • Din totala årsinkomst brutto behöver vara minst 2 gånger årshyran.
  • Inkomster som godkänns är inkomst av tjänst, eget företag, frilansuppdrag, projektanställning, långtidsvikariat, pension, CSN, a-kassa, aktivitetsersättning, sjukersättning, bostadsbidrag, bostadstillägg och omvårdnadsbidrag.
  • Vid ekonomiskt bistånd (försörjningsstöd) behövs det finnas beslut från kommunen sökt bostad ligger i.
  • Vid inkomst från egen näringsverksamhet behöver företaget varit verksamt i minst 1 år.
  • Borgensman och kapital godkänns ej.
  • Du behöver kunna styrka att din inkomst når upp till inkomstkravet minst 3 månader framåt.
  • Vid annan anställningsform än fast anställning krävs 3 lönebesked från aktuell anställning prövning baseras på.
  • Sammanräkning av inkomst kan godtas för par som ska bo tillsammans. Huvudsökande behöver styrka minst 50 % av inkomstvillkoret.
  • Om bostad innehas kräver hyresvärden att uppsagt hyreskontrakt alternativt mäklaruppdrag för villa eller bostadsrätt kan uppvisas före nytt kontrakt tecknas. Senast 6 månader efter inflyttningsdatum ska du kunna visa ett avtal på såld bostad. Vid skilsmässa krävs kvitto från tingsrätten på ansökan om skilsmässa.
  • Du behöver ha goda boendereferenser från tidigare boende.