Stockholm, Bromsten

Gerda Bergstrands väg 2

Hyra 10462 kr/mån
Våning 1 tr
Rum 1,5
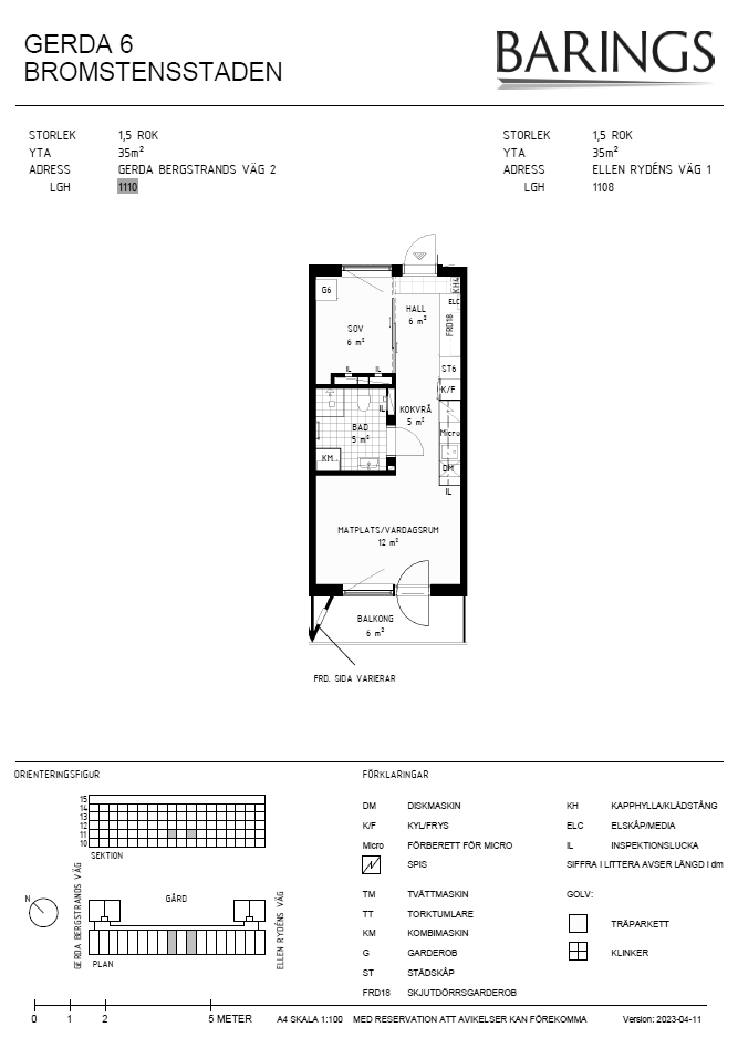
Boyta 35 kvm
Inflytt 2026-06-01
Anmälan senast 2026-04-05
För att anmäla intresse på bostaden behöver du vara registrerad som bostadssökande och vara inloggad.
Planlösning

Egenskaper

  • Kök
  • Öppen planlösning
  • Diskmaskin
  • Inbyggd mikrovågsugn
  • Badrum
  • Tvättmaskin
  • Hiss finns, uppgift om framkomlighet saknas
  • Balkong
  • Säkerhetsdörr

Förvaring/gemensamma utrymmen

  • Cykelrum
  • Barnvagnsrum
  • Förråd i bostaden
  • Tillgång till P-plats
  • Tillgång till Elladning/stolpar
  • Miljörum/Källsortering

Förbrukning

  • El - individuell mätning
  • Värme ingår i hyran
  • Varmvatten - Individuell mätning

Kontrollera att du uppfyller hyresvärdens villkor

Vi jämför hyresvärdens villkor för bostaden med de uppgifter som du har angett hos oss. Logga in för att se om du har möjlighet att göra en intresseanmälan.

Villkor för att anmäla intresse

För att kunna anmäla intresse behöver nedan villkor vara uppfyllda.

  • Lägsta årsinkomst: 255000 kronor
  • Max antal hushållsmedlemmar: 2

Villkor för att skriva kontrakt

  • Du får inte ha obetalda skulder hos Kronofogden. Max 2 anmärkningar accepteras. Betalningsanmärkningar ska vara äldre än 12 månader och det totala beloppet får vara max 20 000 kr. Anmärkningen får ej vara boenderelaterad.
  • Din totala årsinkomst brutto behöver vara lägst 2 gånger årshyran.
  • Du behöver kunna styrka att din inkomst når upp till inkomstkravet minst 3 månader från inflyttning. Inkomster som godkänns: Inkomst från tjänst, eget företag, pension, a-kassa, sjukersättning, sjukpenning, CSN, omvårdnadsbidrag, bostadstillägg och bostadsbidrag.
  • Sammanslagning av inkomst kan godtas för sammanboende par.
  • Hyresvärden kräver att du visar att du har behov av bostaden genom att säga upp nuvarande hyresavtal eller teckna ett mäklaruppdrag för den ägda bostaden innan nytt hyresavtal kan tecknas.
  • Vid skilsmässa krävs ett kvitto från tingsrätten på inlämnad ansökan om skilsmässa, innan du anmäler intresse för den här lägenheten.
  • Du behöver ha goda boendereferenser från tidigare boende.
  • Ha samtliga intyg i beredskap om du accepterar lägenheten.