Sollentuna, Rotsunda

Rusthållarevägen 5

Hyra 6479 kr/mån
Våning BV
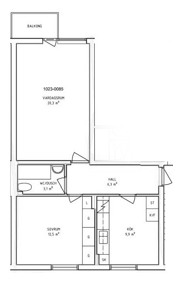
Rum 2
Boyta 51 kvm
Inflytt 2026-03-01
Anmälan senast 2026-01-11
Annonseringen är avslutad
Planlösning

Bostadstyp

Korttid

Egenskaper

  • Kök
  • Badrum
  • Hiss saknas, uppgift om framkomlighet saknas
  • Balkong

Kontrollera att du uppfyller hyresvärdens villkor

Vi jämför hyresvärdens villkor för bostaden med de uppgifter som du har angett hos oss. Logga in för att se om du har möjlighet att göra en intresseanmälan.

Villkor för att anmäla intresse

För att kunna anmäla intresse behöver nedan villkor vara uppfyllda.

  • Lägsta årsinkomst: 235000 kronor
  • Max antal hushållsmedlemmar: 4

Villkor för att skriva kontrakt

  • Du får inte ha betalningsanmärkningar eller skulder hos Kronofogden.
  • Din totala årsinkomst brutto behöver vara lägst 3 gånger årshyran.
  • Du behöver kunna styrka att din inkomst når upp till inkomstkravet minst 6 månader från inflyttning.
  • Sökande ska i första hand uppfylla inkomstkravet själv. Sammanslagning av inkomst kan godtas för sammanboende par som varit folkbokförda på samma adress minst 6 månader alternativt stått som medboende i minst 6 månader. Huvudsökande behöver uppnå minst 50 % av inkomstkravet.
  • Provanställning, försörjningsstöd, äldreförsörjningsstöd och kapital godkänns ej som inkomst.
  • Vid inkomst av tjänst behöver du kunna uppvisa minst 3 lönebesked från aktuell anställning
  • Vid behovsanställning behöver du kunna uppvisa medlemskap i A-kassa sedan 1 år tillbaka.
  • Vid inkomst från eget företag behöver företaget ha varit verksamt i minst 1 år och haft stadigvarande intäkter.
  • Du kommer behöva säga upp nuvarande hyresavtal eller teckna ett mäklaruppdrag för den ägda bostaden innan nytt avtal kan tecknas. Vid ägande behöver försäljningsdokument uppvisas senast 6 månader efter att hyresavtalet börjat gälla. Vid skilsmässa krävs kvitto från tingsrätten på ansökan om skilsmässa.
  • Om den sökande är gift behöver båda makarna underteckna överenskommelse om avstående från besittningsskydd.
  • Hyresvärden kan komma att inhämta boendereferenser.
  • Om du är erbjuden möjligheten att titta på lägenheten är det ett krav att du, din medboende eller ett ombud har varit på visningen och sett den aktuella lägenheten.
  • Hyresvärden godkänner maximalt 2 vuxna och resterande barn i denna bostad.