Upplands-Bro, Bro

Sparres väg 14

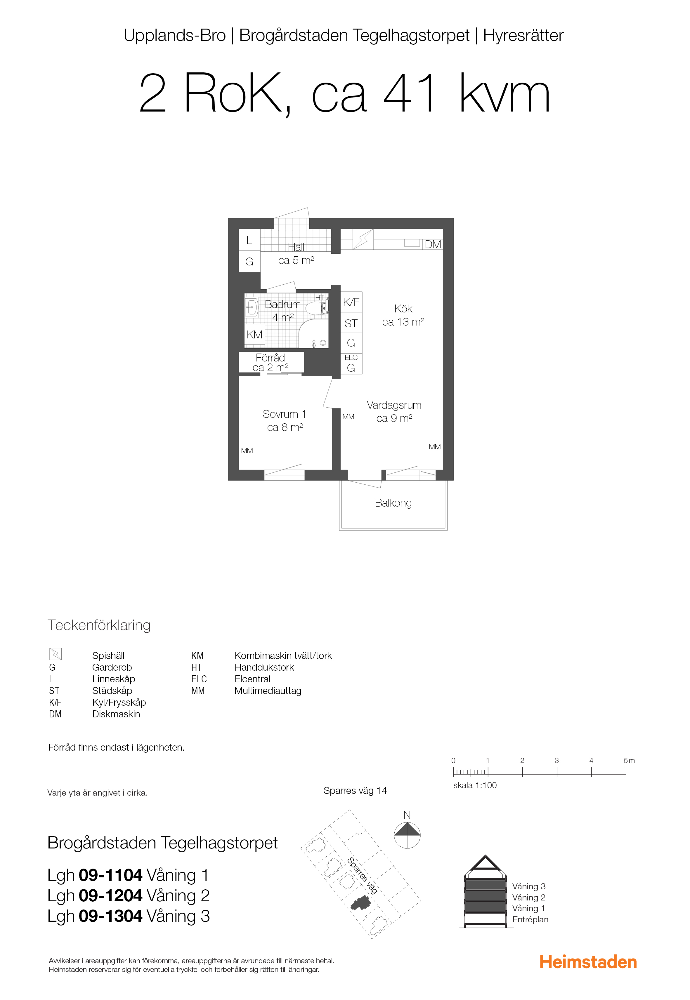
Visa planritning
Brogård 1460 Brogård 1460 2 Brogård 1460 lägenhet kök Brogård 1460 lägenhet badrum Brogårdsstaden badrum BM
Hyra 7236 kr/mån
Våning 2 tr
Rum 2
Boyta 41 kvm
Inflytt 2026-03-01
Anmälan senast 2025-12-28
För att anmäla intresse på bostaden behöver du vara registrerad som bostadssökande och vara inloggad.
Planlösning

Egenskaper

  • Kök
  • Diskmaskin
  • Badrum
  • Tvättmaskin
  • Handdukstork
  • Hiss finns, rymmer rullstol
  • Balkong
  • Säkerhetsdörr
  • Rökfritt

Förvaring/gemensamma utrymmen

  • Cykelställ
  • Förråd i bostaden
  • Tillgång till P-plats
  • Miljörum/Källsortering

Förbrukning

  • El - individuell mätning
  • Värme - Individuell mätning
  • Varmvatten - Individuell mätning

Kontrollera att du uppfyller hyresvärdens villkor

Vi jämför hyresvärdens villkor för bostaden med de uppgifter som du har angett hos oss. Logga in för att se om du har möjlighet att göra en intresseanmälan.

Villkor för att anmäla intresse

För att kunna anmäla intresse behöver nedan villkor vara uppfyllda.

  • Max antal hushållsmedlemmar: 2

Villkor för att skriva kontrakt

  • Du får inte ha betalningsanmärkningar eller skulder hos Kronofogden.
  • Den sökandes inkomst ska stå i proportion till den aktuella lägenhetens hyresnivå. När hyran är betald ska den sökande ha ett bestämt belopp kvar. För 2026 är beloppen 6 243 kronor för en ensamstående vuxen och 10 314 kronor för två vuxna, 3 336 kronor per barn upp till 6 år, 4 004 kronor per barn över 7 år, 4 672 kronor per barn över 11 år och 5 339 kronor per barn över 15 år.
  • Du behöver kunna styrka att din inkomst når upp till inkomstkravet minst 3 månader framåt. Vid annan anställningsform än fast anställning behöver anställningen ha varat i minst 3 månader.
  • Sammanslagning av inkomst kan godtas för sammanboende par. Huvudsökande behöver själv uppnå minst 50 % av inkomstvillkoret. Ingen borgensman accepteras.
  • Hyresvärden kräver att du visar att du har behov av bostaden genom att säga upp nuvarande hyresavtal eller teckna ett mäklaruppdrag för den ägda bostaden innan nytt hyresavtal kan tecknas. Vid skilsmässa krävs ett kvitto från tingsrätten på inlämnad ansökan om skilsmässa, innan du anmäler intresse för den här lägenheten.
  • Du behöver ha goda boendereferenser från tidigare boende.
  • Ha samtliga intyg i beredskap om du accepterar lägenheten.