Sigtuna, Valsta

Kungshörnet 7

Hyra 10433 kr/mån
Våning 5 tr
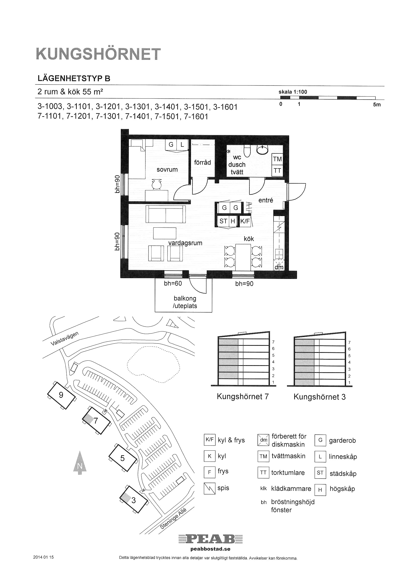
Rum 2
Boyta 55 kvm
Inflytt 2026-03-01
Anmälan senast 2025-12-15
För att anmäla intresse på bostaden behöver du vara registrerad som bostadssökande och vara inloggad.
Planlösning

Egenskaper

  • Kök
  • Förberett för installation av diskmaskin
  • Badrum
  • Tvättmaskin
  • Handdukstork
  • Hiss finns, uppgift om framkomlighet saknas
  • Balkong
  • Rökfritt

Förvaring/gemensamma utrymmen

  • Cykelställ
  • Barnvagnsrum
  • Förråd i bostaden
  • Tillgång till P-plats
  • Miljörum/Källsortering

Förbrukning

  • El - individuell mätning
  • Värme ingår i hyran
  • Varmvatten - ingår i hyran

Kontrollera att du uppfyller hyresvärdens villkor

Vi jämför hyresvärdens villkor för bostaden med de uppgifter som du har angett hos oss. Logga in för att se om du har möjlighet att göra en intresseanmälan.

Villkor för att anmäla intresse

För att kunna anmäla intresse behöver nedan villkor vara uppfyllda.

  • Lägsta årsinkomst: 250000 kronor
  • Max antal hushållsmedlemmar: 3

Villkor för att skriva kontrakt

  • Hyresvärden accepterar max 3 betalningsanmärkningar, det totala beloppet får vara max 5000 kronor.
  • Hyresvärden tillämpar en inkomstregel som innebär att din totala årsinkomst brutto skall uppgå till lägst 2 gånger årshyran.
  • Hyresvärdens villkor är att du har en regelbunden inkomst som varar minst 6 månader framåt från inflyttningsdatum. Som inkomst räknas till exempel tillsvidareanställning, egen rörelse, frilansuppdrag, visstidsanställnings, behovsanställning, pension, A-kassa eller långtidsvikariat. Inkomsten kan kompletteras med barnbidrag, föräldrapenning, studiebidrag eller bostadstillägg. Vid annan anställningsform än tillsvidareanställningar krävs 6 månaders medlemskap i a-kassan. Försörjningsstöd godkänns inte.
  • Hyresvärden kommer att kräva intyg som styrker dina inkomstuppgifter. Ha intygen i beredskap om du accepterar lägenheten.
  • Hyresvärdens godkänner att du sammanräknar din inkomst om ni varit medboende i 6 månader alternativt varit sammanboende och folkbokförda på samma adress i minst 6 månader. Minst 50 % av inkomstkravet ska huvudsökande uppfylla själv. Sammanräkning av inkomst godkänns inte tillsammans med barn, syskon, förälder eller vänner.
  • Om bostad innehas kräver hyresvärden att uppsagt hyreskontrakt alternativt mäklaruppdrag för villa eller bostadsrätt kan uppvisas före nytt kontrakt tecknas.
  • Hyresvärden har regler mot trångboddhet för att förhindra osunda boendeförhållanden i fastigheten. Antalet personer som skall bo i lägenheten skall vara rimligt i förhållande till lägenhetens storlek.
  • Hyresvärden kommer att ta referenser från nuvarande eller tidigare boende.