Sigtuna, Märsta Centrum

Södergatan 2P

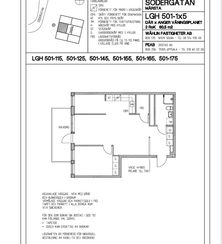
Visa planritning
501 - Södergatan 2 p - Fasad
Hyra 10676 kr/mån
Våning 7 tr
Rum 2
Boyta 60 kvm
Inflytt 2026-03-01
Anmälan senast 2025-12-16
För att anmäla intresse på bostaden behöver du vara registrerad som bostadssökande och vara inloggad.
Planlösning

Egenskaper

  • Kök
  • Badrum
  • Gemensam tvättstuga
  • Hiss finns, uppgift om framkomlighet saknas
  • Balkong

Förvaring/gemensamma utrymmen

  • Källar/vindsförråd

Förbrukning

  • Värme ingår i hyran
  • Varmvatten - ingår i hyran

Kontrollera att du uppfyller hyresvärdens villkor

Vi jämför hyresvärdens villkor för bostaden med de uppgifter som du har angett hos oss. Logga in för att se om du har möjlighet att göra en intresseanmälan.

Villkor för att anmäla intresse

För att kunna anmäla intresse behöver nedan villkor vara uppfyllda.

  • Max antal hushållsmedlemmar: 3

Villkor för att skriva kontrakt

  • Hyresvärden accepterar inga betalningsanmärkningar, oreglerade skulder eller pågående skuldsanering.
  • Hushållets inkomst ska stå i proportion till den aktuella lägenhetens hyresnivå. När hyran är betald ska hushållet ha ett bestämt belopp kvar. För 2026 är beloppen 9 700 kronor för 1 ensamstående vuxen, 16 500 kronor för 2 vuxna, samt 2 900 kronor per barn.
  • Vid sammanräkning behöver ni ha varit folkbokförda på samma adress eller registrerade som medboende i minst 12 månader. Huvudsökande behöver styrka 50% av hushållets totala inkomst.
  • Inkomster som godkänns är tillsvidareanställning, visstidsanställning, behovsanställning, eget företag, ålderspension, barnbidrag och föräldrapenning med anställning i grunden.
  • CSN, A-kassa, borgensman, övriga bidrag och ersättningar godkänns inte.
  • Vid inkomst från egen näringsverksamhet behöver företaget varit verksamt i minst 2 år.
  • Du behöver kunna styrka stadigvarande inkomst minst 6 månader från inflyttningsdatumet och styrka 3 lönebesked från aktuell anställning prövning baseras på. Vid behovsanställning krävs 6 lönebesked från aktuellt arbete prövningen baseras på.
  • Om sökande har en tidsbegränsad anställning som inte är tillsvidare krävs medlemskap i a-kassa sedan minst 1 år tillbaka vid prövningstillfället.
  • Om bostad innehas kräver hyresvärden att uppsagt hyreskontrakt alternativt mäklaruppdrag för villa eller bostadsrätt kan uppvisas före nytt kontrakt tecknas. Senast 6 månader efter inflyttningsdatum ska du kunna visa ett avtal på såld bostad. Vid skilsmässa krävs kvitto från tingsrätten på ansökan om skilsmässa.
  • Du behöver ha goda boendereferenser från tidigare boende.
  • Om du är erbjuden möjligheten att titta på lägenheten är det ett krav att du, din medboende eller ett ombud har varit på visningen och sett den aktuella lägenheten.