Sigtuna, Tingvalla

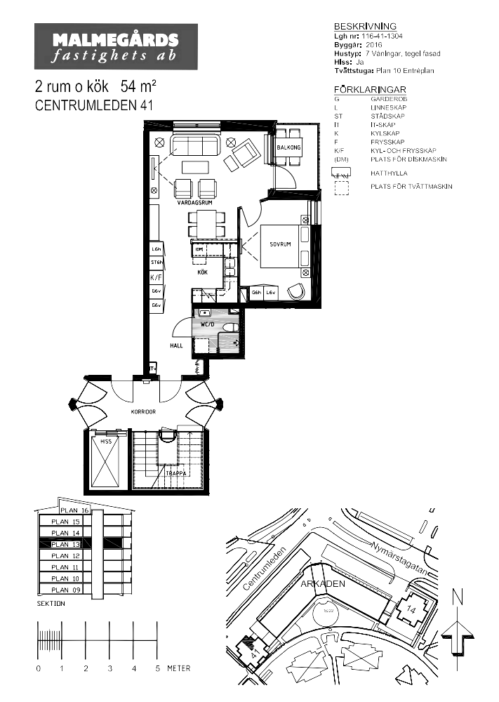
Centrumleden 41

Utsikt Kök Kök 1 Vardagsrum Hall Sovrum Badrum Badrum 1 Kök 3 Balkong
Hyra 10987 kr/mån
Våning 3 tr
Rum 2
Boyta 54 kvm
Inflytt 2026-04-01
Anmälan senast 2026-01-13
För att anmäla intresse på bostaden behöver du vara registrerad som bostadssökande och vara inloggad.
Planlösning

Egenskaper

  • Kök
  • Badrum
  • Gemensam tvättstuga
  • Hiss finns, rymmer rullstol
  • Balkong
  • Rökfritt
  • Husdjur förbjudna

Förvaring/gemensamma utrymmen

  • Cykelrum
  • Barnvagnsrum
  • Källar/vindsförråd
  • Tillgång till kallgarage
  • Tillgång till P-plats
  • Miljörum/Källsortering

Förbrukning

  • Värme ingår i hyran
  • Varmvatten - ingår i hyran
  • Bredband - ingår i hyran

Kontrollera att du uppfyller hyresvärdens villkor

Vi jämför hyresvärdens villkor för bostaden med de uppgifter som du har angett hos oss. Logga in för att se om du har möjlighet att göra en intresseanmälan.

Villkor för att anmäla intresse

För att kunna anmäla intresse behöver nedan villkor vara uppfyllda.

  • Lägsta årsinkomst: 330000 kronor
  • Max antal hushållsmedlemmar: 3

Villkor för att skriva kontrakt

  • Hyresvärden accepterar inga betalningsanmärkningar eller oreglerade skulder.
  • Hyresvärden tillämpar en inkomstregel som innebär att din totala inkomst brutto skall uppgå till lägst 2,5 gånger årshyran.
  • Hyresvärdens godkänner att du sammanräknar din inkomst med en annan person/partner om ni har varit och folkbokförda på samma adress eller registrerade som medboende i minst 12 månader. Huvudsökande behöver själv uppnå minst 51 % av inkomstkravet.
  • Inkomster som godkänns är inkomst av tjänst, egen näringsverksamhet, ålderspension, CSN, a-kassa, aktivitetsersättning, sjukersättning, omvårdnadsbidrag. barnbidrag och underhållsbidrag godkänns endast för ensamstående. Övriga bidragsinkomster godkänns ej. Vid provanställning eller annan tidsbegränsad anställning krävs medlemskap i a-kassan.
  • Sökanden ska styrka sin inkomst 3 månader framåt i tiden efter inflyttning.
  • Om bostad innehas kräver hyresvärden att uppsagt hyreskontrakt alternativt uppdragsavtal från mäklare, försäljningsdokument för villa eller bostadsrätt kan uppvisas före nytt kontrakt tecknas.
  • Vid ägande av bostadsrätt/villa kommer du att behöva uppvisa försäljningsdokument 6 månader efter inflyttningsdatum.
  • Ansökan om skilsmässa ska vara fullbordad innan lägenheten publicerats för annons.
  • Hyresvärden har regler mot trångboddhet. Antalet boende i bostaden ska vara rimligt i förhållande till storleken.
  • Hyresvärden kommer att inhämta boendereferenser.