Stockholm, Hägersten

Dialoggatan 22

Hyra 5485 kr/mån
Våning 1 tr
Rum 1
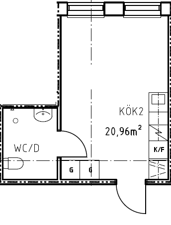
Boyta 21 kvm
Inflytt 2026-04-01
Anmälan senast 2026-01-20
För att anmäla intresse på bostaden behöver du vara registrerad som bostadssökande och vara inloggad.
Planlösning

Bostadstyp

Student

Egenskaper

  • Kokvrå
  • Badrum
  • Hiss finns, rymmer rullstol
  • Ej balkong
  • Säkerhetsdörr
  • Rökfritt
  • Husdjur förbjudna

Förbrukning

  • El ingår i hyran
  • Värme ingår i hyran
  • Varmvatten - ingår i hyran
  • Bredband - Hyrestillägg

Kontrollera att du uppfyller hyresvärdens villkor

Vi jämför hyresvärdens villkor för bostaden med de uppgifter som du har angett hos oss. Logga in för att se om du har möjlighet att göra en intresseanmälan.

Villkor för att anmäla intresse

För att kunna anmäla intresse behöver nedan villkor vara uppfyllda.

  • Studentvillkor

Villkor för att skriva kontrakt

  • Högskola/Universitet – Godkänns.
  • Yrkeshögskola – Godkänns.
  • Komvux/Folkhögskola – Godkänns inte.
  • Forskarstudent (Doktorand) – Godkänns.
  • Distansstudier – Godkänns inte.
  • Studietakt – Studier på minst 100 % (30hp/100YH) godkänns. Du behöver kunna uppvisa 22,5 godkända högskolepoäng eller 75 godkända YH poäng per termin för att få fortsätta hyra studentlägenheten.
  • Studieort – Endast Stockholms län godkänns.
  • Studieintyg – Registreringsintyg, antagningsbesked och ansökan till kommande termin godkänns.
  • Betalningsanmärkningar – Godkänns inte.
  • Skulder hos Kronofogden – Godkänns inte.
  • Nuvarande bostad – Ska avvecklas.
  • Einar Mattssons studentbostäder – För att byta studentbostad på Götgatan 78, Vartoftagatan 47, Dialoggatan 22 via bostadsförmedlingen krävs en boendetid på 1 år i nuvarande studentbostad hos Einar Mattsson.
  • Husdjur i fastigheten - Godkänns inte.
  • Rökning i fastigheten - Godkänns inte.