Södertälje, Hovsjö

Gröndalsvägen 4

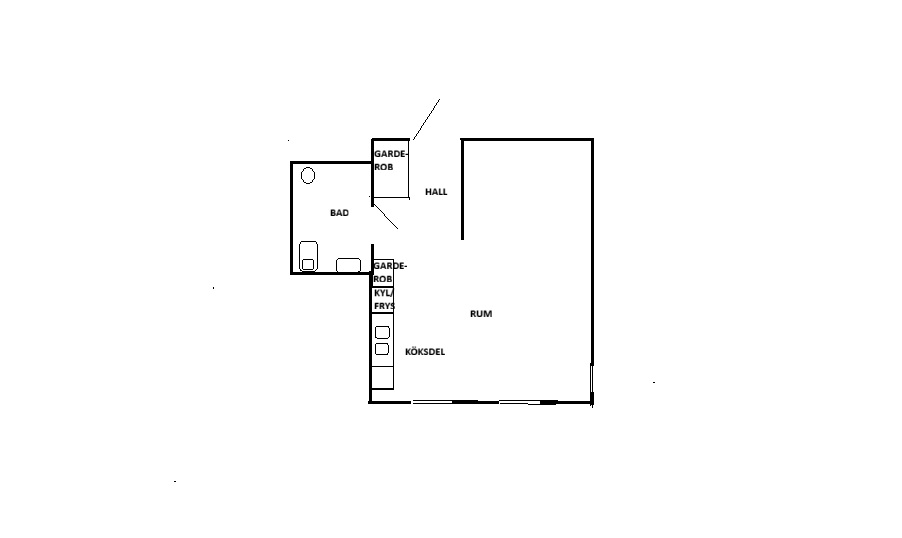
Visa planritning
Kök Rum Badrum
Hyra 5606 kr/mån
Våning 2 tr
Rum 1
Boyta 33 kvm
Inflytt 2026-03-01
Anmälan senast 2026-02-03
För att anmäla intresse på bostaden behöver du vara registrerad som bostadssökande och vara inloggad.
Planlösning

Egenskaper

  • Kokskåp
  • Badrum
  • Gemensam tvättstuga
  • Hiss finns, rymmer rullstol
  • Ej balkong

Förvaring/gemensamma utrymmen

  • Källar/vindsförråd
  • Tillgång till kallgarage
  • Tillgång till P-plats

Förbrukning

  • El ingår i hyran
  • Värme ingår i hyran
  • Varmvatten - ingår i hyran

Kontrollera att du uppfyller hyresvärdens villkor

Vi jämför hyresvärdens villkor för bostaden med de uppgifter som du har angett hos oss. Logga in för att se om du har möjlighet att göra en intresseanmälan.

Villkor för att anmäla intresse

För att kunna anmäla intresse behöver nedan villkor vara uppfyllda.

  • Lägsta årsinkomst: 135000 kronor
  • Max antal hushållsmedlemmar: 2

Villkor för att skriva kontrakt

  • Betalningsanmärkningar får inte vara boenderelaterade. Vid skulder behöver du ha skuldsanering som har fungerat utan anmärkning de senaste 6 månaderna. Löneutmätning godkänns inte som avbetalningsplan.
  • Din totala årsinkomst brutto behöver vara minst 2 gånger årshyran.
  • Du behöver kunna styrka att din inkomst når upp till inkomstvillkoret minst 3 månader från inflyttning. Inkomster som godkänns är inkomst av tjänst, eget företag, ålderspension, CSN, a-kassa, övriga bidrag och ersättningar.
  • Vid behovsanställning krävs 3 lönebesked från aktuellt arbete prövningen baseras på.
  • Försörjningsstöd godkänns inte som inkomst.
  • Vid inkomst från egen näringsverksamhet behöver företaget varit verksamt i minst 1 år.
  • Sammanräkning av inkomst godtas för par som ska bo tillsammans. Minst hälften av inkomstkravet ska huvudsökande uppfylla själv.
  • Vid skilsmässa krävs kvitto från tingsrätten på ansökan om skilsmässa.
  • Du behöver ha goda boendereferenser från tidigare boende.