Sollentuna, Häggvik

Aseavägen 9

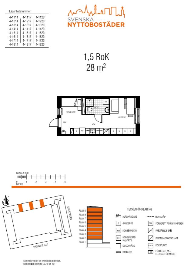
Visa planritning
Interiörbild Interiörbild Badrum Badrum
Hyra 8876 kr/mån
Våning 4 tr
Rum 1,5
Boyta 28 kvm
Inflytt 2026-03-01
Anmälan senast 2026-01-19
För att anmäla intresse på bostaden behöver du vara registrerad som bostadssökande och vara inloggad.
Planlösning

Egenskaper

  • Kök
  • Förberett för installation av diskmaskin
  • Badrum
  • Tvättmaskin
  • Hiss finns, nås via trappor
  • Ej balkong
  • Säkerhetsdörr
  • Rökfritt

Förvaring/gemensamma utrymmen

  • Cykelrum
  • Cykelställ
  • Barnvagnsrum
  • Förråd i bostaden
  • Tillgång till varmgarage
  • Miljörum/Källsortering

Förbrukning

  • Värme ingår i hyran
  • Varmvatten - Individuell mätning
  • Bredband - Hyrestillägg

Kontrollera att du uppfyller hyresvärdens villkor

Vi jämför hyresvärdens villkor för bostaden med de uppgifter som du har angett hos oss. Logga in för att se om du har möjlighet att göra en intresseanmälan.

Villkor för att anmäla intresse

För att kunna anmäla intresse behöver nedan villkor vara uppfyllda.

  • Max antal hushållsmedlemmar: 2

Villkor för att skriva kontrakt

  • Hyresvärden accepterar inga betalningsanmärkningar eller oreglerade skulder.
  • Din inkomst ska stå i proportion till den aktuella lägenhetens hyresnivå. När hyran är betald ska du ha ett bestämt belopp kvar. För 2025 är beloppet 6 186 kronor för en ensamstående vuxen. Sammanslagning av inkomst kan godtas för sammanboende par. Vid sammanslagning ska hushållet ha kvar 10 219 kronor när hyran är betald.
  • Ingen borgensman accepteras. Du behöver kunna styrka att du har en stadigvarande inkomst minst 1 månad framåt från inflyttningsdatum.
  • Du behöver ha goda boendereferenser från tidigare boende. Du behöver visa att du har behov av bostaden genom att säga upp nuvarande hyresavtal eller teckna ett mäklaruppdrag för den ägda bostaden innan nytt hyresavtal kan tecknas. Om du lämnar in ett mäklaruppdrag kommer du att behöva visa ett försäljningsdokument 6 månader efter inflyttningsdatum.
  • Vid skilsmässa krävs kvitto från tingsrätten på ansökan om skilsmässa innan du anmäler intresse för lägenheten.
  • Om du bor hos hyresvärden idag behöver du ha bott i minst 1 år för att få söka ny bostad hos samma hyresvärd.
  • Du kan behöva visa intyg som styrker din inkomst. Ha samtliga intyg i beredskap om du accepterar lägenheten.
  • Du behöver ha e-legitimation för att signera hyresavtalet.