Huddinge, Visättra

Småbrukets backe 30

Huddinge - 1168 Brygghuset 2 Huddinge - 1168 Brygghuset 2 Huddinge - 1168 Brygghuset 2 utegym Huddinge - 1168 Brygghuset 2 - Student Huddinge - 1168 Brygghuset 2 - Student Huddinge - 1168 Brygghuset 2 - Student
Hyra 5625 kr/mån
Våning 3 tr
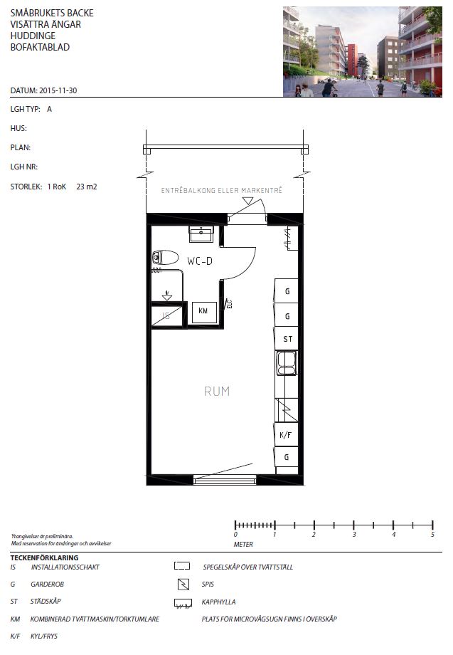
Rum 1
Boyta 23 kvm
Inflytt 2026-06-01
Anmälan senast 2026-04-28
För att anmäla intresse på bostaden behöver du vara registrerad som bostadssökande och vara inloggad.
Planlösning

Bostadstyp

Student

Egenskaper

  • Kokvrå
  • Badrum
  • Tvättmaskin
  • Hiss finns, rymmer rullstol
  • Ej balkong
  • Loftgång
  • Säkerhetsdörr

Förvaring/gemensamma utrymmen

  • Cykelställ
  • Förråd i bostaden
  • Miljörum/Källsortering

Förbrukning

  • Värme ingår i hyran
  • Varmvatten - ingår i hyran
  • Bredband - ingår i hyran

Kontrollera att du uppfyller hyresvärdens villkor

Vi jämför hyresvärdens villkor för bostaden med de uppgifter som du har angett hos oss. Logga in för att se om du har möjlighet att göra en intresseanmälan.

Villkor för att anmäla intresse

För att kunna anmäla intresse behöver nedan villkor vara uppfyllda.

  • Studentvillkor
  • Max antal hushållsmedlemmar: 1

Villkor för att skriva kontrakt

  • Betalningsanmärkningar – Godkänns inte.
  • Skulder hos Kronofogden – Godkänns inte.
  • Högskola/Universitet – Godkänns.
  • Yrkeshögskola – Godkänns.
  • Komvux/Folkhögskola – Godkänns.
  • Forskarstudent (Doktorand) – Godkänns.
  • Distansstudier – Godkänns.
  • Studietakt – Studier på minst 50% (15 hp eller motsvarande) godkänns.
  • Studieort – Endast Stockholms län godkänns, med undantag för distansstudier.
  • Studieintyg – Registreringsintyg, studieintyg, ansökan eller antagningsbesked.
  • Vårdnadshavare till barn – Godkänns inte.
  • Nuvarande bostad – Ska avvecklas.
  • Du behöver ha goda boendereferenser från tidigare boende.