Värmdö, Munkmora

Nelsonstigen 4

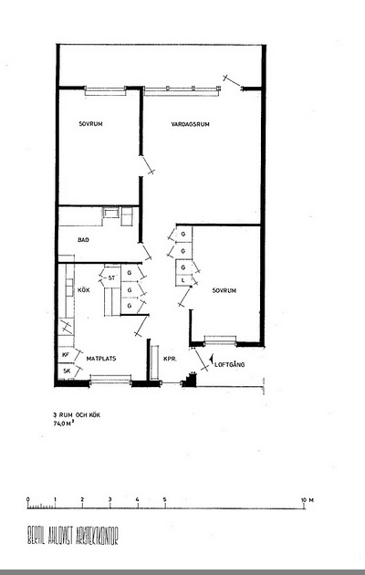
Visa planritning
Nelsonstigen entrésida Nelsonstigen långa huset gatusida 1 Nelsonstigen långa huset gatusidan 2
Hyra 11579 kr/mån
Våning 1 tr
Rum 3
Boyta 74 kvm
Inflytt 2026-01-01
Anmälan senast 2025-11-27
För att anmäla intresse på bostaden behöver du vara registrerad som bostadssökande och vara inloggad.
Planlösning

Bostadstyp

Värmdökön

Egenskaper

  • Kök
  • Badrum
  • Gemensam tvättstuga
  • Hiss finns, uppgift om framkomlighet saknas
  • Balkong

Förvaring/gemensamma utrymmen

  • Miljörum/Källsortering

Kontrollera att du uppfyller hyresvärdens villkor

Vi jämför hyresvärdens villkor för bostaden med de uppgifter som du har angett hos oss. Logga in för att se om du har möjlighet att göra en intresseanmälan.

Villkor för att anmäla intresse

För att kunna anmäla intresse behöver nedan villkor vara uppfyllda.

  • Max antal hushållsmedlemmar: 5

Villkor för att skriva kontrakt

  • Hyresvärden accepterar inga oreglerade skulder. Eventuella betalningsanmärkningar får maximalt uppgå till 1000 kronor totalt och får ej vara hyresrelaterade.
  • Den sökandes inkomst ska stå i proportion till den aktuella lägenhetens hyresnivå. När hyran är betald ska den sökande ha ett bestämt belopp kvar. För år 2025 är beloppet 6 186 kronor för en ensamstående vuxen.
  • Hyresvärden kommer att kräva nyutfärdat anställningsintyg eller motsvarande med inkomstuppgifter. Ha intyget i beredskap om du accepterar lägenheten.
  • Du behöver kunna styrka att din inkomst når upp till inkomstvillkoret minst 6 månader från inflyttning, om du endast kan styrka inkomst 3 månader krävs medlemskap i a-kassa som varat i minst 6 månader.
  • Hyresvärdens villkor är att du har en regelbunden inkomst från till exempel en anställning, pension, eget företag, A-kassa, sjukpenning, sjukbidrag eller studiemedel. Vid ekonomiskt bistånd (försörjningsstöd) behövs det finnas beslut från Värmdö kommun.
  • Om bostad innehas kräver hyresvärden uppsagt hyreskontrakt. Försäljning av villa eller bostadsrätt skall vara påbörjad vid kontraktsteckning.
  • Max antal boende i bostaden är 2 vuxna och 3 barn.